
Расчеты пожарного риска проводятся:
Расчет пожарного риска производится как на стадии проектирования, строительства и реконструкции объекта, так и в процессе эксплуатации.
Необходимость в проведении расчетов пожарного риска появляется, если:
Определение расчетных величин пожарного риска заключается в расчете индивидуального пожарного риска для персонала и посетителей в здании, для производственных объектов дополнительно рассчитывается значение риска для людей, находящихся на прилегающих территориях.
Численным выражением индивидуального пожарного риска является частота воздействия опасных факторов пожара (ОФП) на человека, находящегося в здании. Перечень ОФП и нормативные (предельные) значения пожарного риска установлены «Техническим регламентом о требованиях пожарной безопасности»
В основе расчета пожарных рисков лежит принцип сопоставления нормативной величины пожарного риска и расчетной величины пожарного риска.
Посмотреть схему алгоритма расчета пожарного риска.
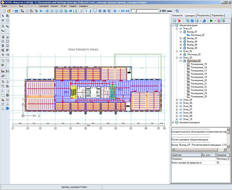
Для проведения расчетов пожарного риска проводятся: расчет времени эвакуации людей из здания (с построением моделей), расчет и моделирование динамики развития опасных факторов пожара, расчет времени заполнения дымом.
Определение расчетных величин пожарного риска осуществляется на основании:
При проведении расчетов пожарного риска специалистами ООО «ЭКСПЕРТ 112» применяются специальные программные средства: «СИТИС: Флоутек ВД 2.20», «СИТИС: Блок 2.20», Pyrosim 2010.1, «СИТИС: Эватек», «Ситис Атриум», «Расчет времени эвакуации из зданий и сооружений», «Интегральная методика расчета необходимого времени эвакуации».
Отображение динамики роста температуры с распространением пожара.
Отображение динамики задымления с распространением пожара.
Стоимость работ по проведению расчетов пожарного риска зависит от технической сложности и/или уникальности объекта, от количества и характера отступлений от норм пожарной безопасности на объекте, для которых требуется расчет пожарного риска, от площади объекта, от необходимости согласования расчетов в органах ГУ МЧС Украины.
Получить более подробную информацию по расчетам пожарного риска и узнать их стоимость Вы можете обратившись к нашим специалистам.
© 2006–2021 ООО «ЭКСПЕРТ 112»
Компания действует на основании лицензий ГСЧС Украины.
(063) 112-112-1
[email protected]
expert112ukr
01004, г. Киев, ул. Пушкинская, 25,
офис 33, 3 этаж Схема проезда